
Przenośniki łańcuchowe dwutorowe znane są pod nazwą P&F (Power & Free) conveyor w różnych przemysłach, ale występują najczęściej jako główny transport technologiczny górny w przemyśle motoryzacyjnym. Kiedyś stosowano dziesiątki kilometrów tego systemu transportu w fabryce samochodów, dzisiaj jest on używany rzadziej, często zastępowany przez nowocześniejsze rozwiązania. W niektórych sytuacjach jest jednak niezastąpiony. W Polsce był produkowany w Radomiu, na licencji włoskiej firmy FATA. Niestety obie firmy, i polska i włoska, chociaż niezwykle zasłużone dla przemysłu motoryzacyjnego, popadły w tarapaty, a firma FATA uległa w końcu likwidacji. Współcześnie, systemy te są nadal oferowane w świecie.
Najprościej można powiedzieć, że system ten składa się z dwóch torów, górnego – power, w którym w sposób ciągły przesuwa się łańcuch ciągnący (z ogniwami w budowie przypominającymi sprzęgło Cardana, tzn. mogącymi pracować w dwóch płaszczyznach lub ich wypadkowych) i toru dolnego – free, w którym przesuwają się niepołączone ze sobą wózki, do których zamontowane są zawieszki (poruszają się w sposób przerywany-cykliczny, dzięki okresowym zazębieniom z łańcuchem górnym poprzez specjalne mechanizmy o różnej konstrukcji, w zależności od producenta systemu). Tory te mają niekiedy skomplikowane trajektorie. Mogą przebiegać w górę, w dół, po okręgu, po krzywej. Jest to wielką zaletą tego systemu, zwłaszcza jazda w dół i w górę, nawet do 90°. Inną jego zaletą jest duża odporność łańcucha i toru na wysokie i niskie temperatury. Łańcuch może przebiegać np. przez komory suszarnicze o temperaturach do 160°.
Najważniejsze cechy systemu P&F to:
- mechanizmy jezdne bez własnego napędu,
- elastyczne przyłączanie i odłączanie,
- bezstopniowa regulacja prędkości,
- centralny układ napędowy,
- centralny zespół smarowania łańcucha i wózków,
- praca taktowa,
- maksymalne obciążenie do 3000 kg (chociaż zdarzają się większe obciążenia),
- odcinki wzniosu i spadku do 30° (choć, jak wspomniałem, zdarzają się w specjalnych rozwiązaniach nawet do 90°).
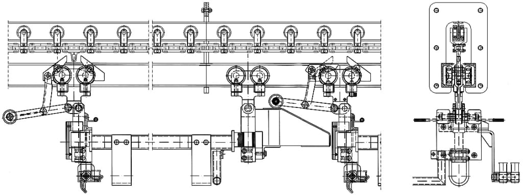
Sam łańcuch zbudowany jest przeważnie – zwłaszcza w cięższych odmianach – z ogniw, z kutego korpusu ze stali (w którym zamontowane są łożyskowane rolki pionowe i poziome) oraz z podwójnego łożyskowanego przegubu. W lżejszych odmianach spotyka się też rozwiązania z korpusem wykrawanym z blachy. W przemyśle spożywczym łańcuch wykonany jest ze stali nierdzewnej. Łańcuch ciągnący pracuje w ruchu ciągłym z zadaną ustaloną prędkością, np. 10 m/min, tworząc zamkniętą pętlę, w której zamontowane są: stacja napędowa, stacja naciągu łańcucha oraz stacja smarowania. W przemyśle motoryzacyjnym łańcuchy mają przeważnie podziałkę: 300, 400, 500, a nawet 600 mm, którą to wielkość dobiera się w zależności od masy przenoszonej i liczby wzniosów, i ich kąta.

Tory kiedyś wykonywane były z dwuteownika, a obecnie przeważnie jest to tor z blachy kształtowanej na zimno, półzamknięty wykonywany w modułach o długości np. 3 m lub 5 m, skręcanych ze sobą poprzez kołnierze. Moduły muszą być wykonywane bardzo dokładnie i dokładnie ze sobą montowane, bo nawet małe niedokładności toru, rzędu kilku dziesiątych milimetra, ale występujące na większości jego połączeń, powodują dodatkowe obciążenia rozciągające łańcuch. Tor zawiesza się do specjalnej konstrukcji stalowej, technologicznej, nie budowlanej, wykonanej na ogół z kształtowników typu HEB, poprzez specjalne zawieszenia, składające się z prętów i specjalnych łapek chwytających za górny tor.
Zespół napędowy składa się z silnika elektrycznego, o mocy zależnej od długości łańcucha i jego wielkości (od 3 do 9 kW), przekładni i koła łańcuchowego o większej średnicy wynikającej z podziałki łańcucha. Ważny tu jest też kąt opasania koła łańcuchowego. Zespół naciągu łańcucha ma koło łańcuchowe osadzone w prowadnicy, które najczęściej odciągane jest grawitacyjnie, poprzez zawieszone na linach lub łańcuchach odpowiednie i znaczne obciążenie z płyt żeliwnych lub betonowych. Zdarza się też naciąg pneumatyczny lub hydrauliczny. Działanie tego systemu polega na automatycznym lub półautomatycznym, ale mechanicznym zazębianiu łańcucha górnego napędowego z łańcuchem dolnym, poprzez specjalny mechanizm.

Składa się on z dwóch klinów uginających się pod wpływem zabieraków, które są zamontowane do łańcucha górnego w odpowiedniej odległości limitującej takt, np. umożliwiającej wykonanie pewnych czynności w linii montażowej w trakcie taktu. Zabierak przejeżdża przez klin, uginając go, i opiera się o drugą stronę drugiego klina zabierając zawieszkę na następne stanowisko, gdzie inny mechanizm ugina drugi klin, po czym zabierak przejeżdża dalej. Zdarzają się też mechanizmy odciągane linką przez pracownika dokonującego na danym stanowisku odpowiednich czynności np. montażowych, przy karoserii wstawionej do zawieszki. System P&F poza obsługiwaniem stanowisk montażowych może realizować inne jeszcze funkcje, jak np. magazynowanie części lub tworzenie magazynów buforowych, awaryjnych. W tym celu torowiska mają zwrotnice przesyłające zawieszki na inne tory. Niekiedy jest dużo zwrotnic i torów magazynowych, przeważnie usytuowanych równolegle. Bardzo często w fabryce samochodów jest kilka oddzielnych pętli P&F. Możliwe jest wtedy przekazywanie zawieszek z jednej pętli na inną, przy pomocy specjalnych zespołów tzw. transferów. Również przy przekazywaniu nadwozia na przenośnik typu slat odbywa się to przy pomocy windy i specjalnego urządzenia synchronizującego prędkość do prędkości przenośnika slat. Urządzenie takie było opisywane we wcześniejszych artykułach o transporcie technologicznym. Ten system transportu działa przede wszystkim mechanicznie. Nie ma tu doprowadzonej energii elektrycznej, poza zespołem napędowym, czy też pneumatycznej. W związku z tym, jest systemem niezawodnym. Wadą natomiast jest niestety duży hałas, wywoływany przez mnóstwo rolek łańcucha przesuwających się po prowadnicach.
Pod prawie całym systemem transportu P&F powinna być umieszczona siatka zabezpieczająca o nośności 250 kG/m2. Siatki nie ma tylko w miejscach gdzie odbywają się czynności montażowe na poziomie posadzki lub nieco powyżej.
System transportu górnego P&F odegrał w przeszłości wielką rolę w rozwoju motoryzacji. Dziś jeszcze w wielu przypadkach nadal jest niezastąpiony, np. w lakierniach i suszarniach.
Aleksander Łukomski
artykuł pochodzi z wydania 10 (121) październik 2017












































